В разделе:

Здесь может быть Ваша РЕКЛАМА

Последние темы форума:

Ответов: 0, просмотров: 4565 Ответов: 0, просмотров: 4716 Ответов: 0, просмотров: 5586


Голосование:

С какой целью вы посетили bagb.by?


  Проголосовало: 12830


Вы склоняетесь больше?


  Проголосовало: 4121


Покупайте Бизнес с Профессионалами. Остерегайтесь мошенников и недобросовестных продавцов.
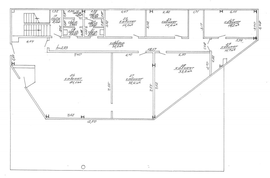
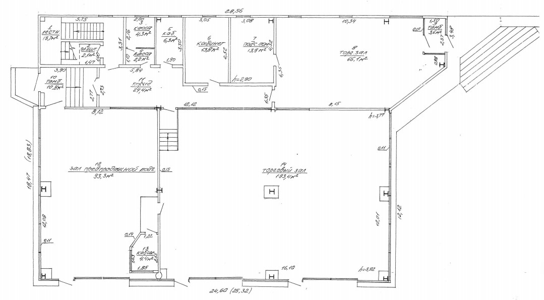
Информация об объекте №40422 .

Продам торговый центр с арендаторами под Минском


Продается Торговый центр, аг. Озерцо, Минский р-н, Брестское напр. Меньковский тракт 2. Бизнес на недвижимости вечен. Редкое предложение для белорусского рынка. Объект расположен в самом проходном месте прямо в центре автомобильного и строительного рынков, возле центрального въезда на парковку. Так же рядом МРЭО ГАИ.

Есть возможность размещения наружной рекламы. Хорошие сроки окупаемости.

Общая площадь 714 м2, этаж 2 / 2, высота потолков 3.5 м, год постройки 2001. Земля в собственности. Удобный подъезд. Охраняемый паркинг.

Характеристики объекта:
Торговые и офисные помещения, отдельные входы, распашные двери, флагштоки и прочее. Все коммуникации - телефон, естественное освещение, сеть 380В, горячая вода, сигнализация, видеонаблюдение, компьютерная сеть. Юридический адрес, парковка, пост охраны.

Предложение напрямую от собственника - Автомобильного Холдинга "Атлант-М". Цена 490$ за м2 (НДС по 0 ставке). Возможна продажа в лизинг с привлечением финансирования в usd со ставкой от 8 до 9%.

+375 29 126 98 00 Евгений - Директор ООО "Автосалон Озерцо"


Цена: 738.500 бел.руб.
Телефон: Евгений +375(29)126-98-00
Адрес: Минск, А.г. Озерцо, Меньковский тракт 2


Не нашли нужный вам бизнес на сайте? Позвоните +375 (29) 705 98 60 (mts); и мы найдем бизнес под ваши требования.

Сопутствующие услуги покупателям и продавцам Бизнеса


Количество просмотров: 2590. Дата добавления: 20.03.2019
Фотографии и планы